Our service
Planning
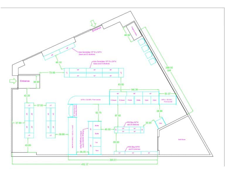
Professionally made floor plan is the right start. We provide full set of CAD drawings complete with elevations, including reflected ceiling plans, existing fixture layout.
new store

Store Remodeling

Don’t Wait, Get started Today!

